A fabulous traditional Spanish town house in the wonderful town of San Miguel de Salinas, just a 2 minute walk to the church square! Built on two levels with a private solarium, integral garage, separate kitchen with adjacent tiled patio. The upper floor is reached both via an elegant internal stairway, or via an external staircase from the rear patio. There is a laundry room on the terrace off the upper floor and another external staircase which leads to the solarium. There is a store room on the solarium too.
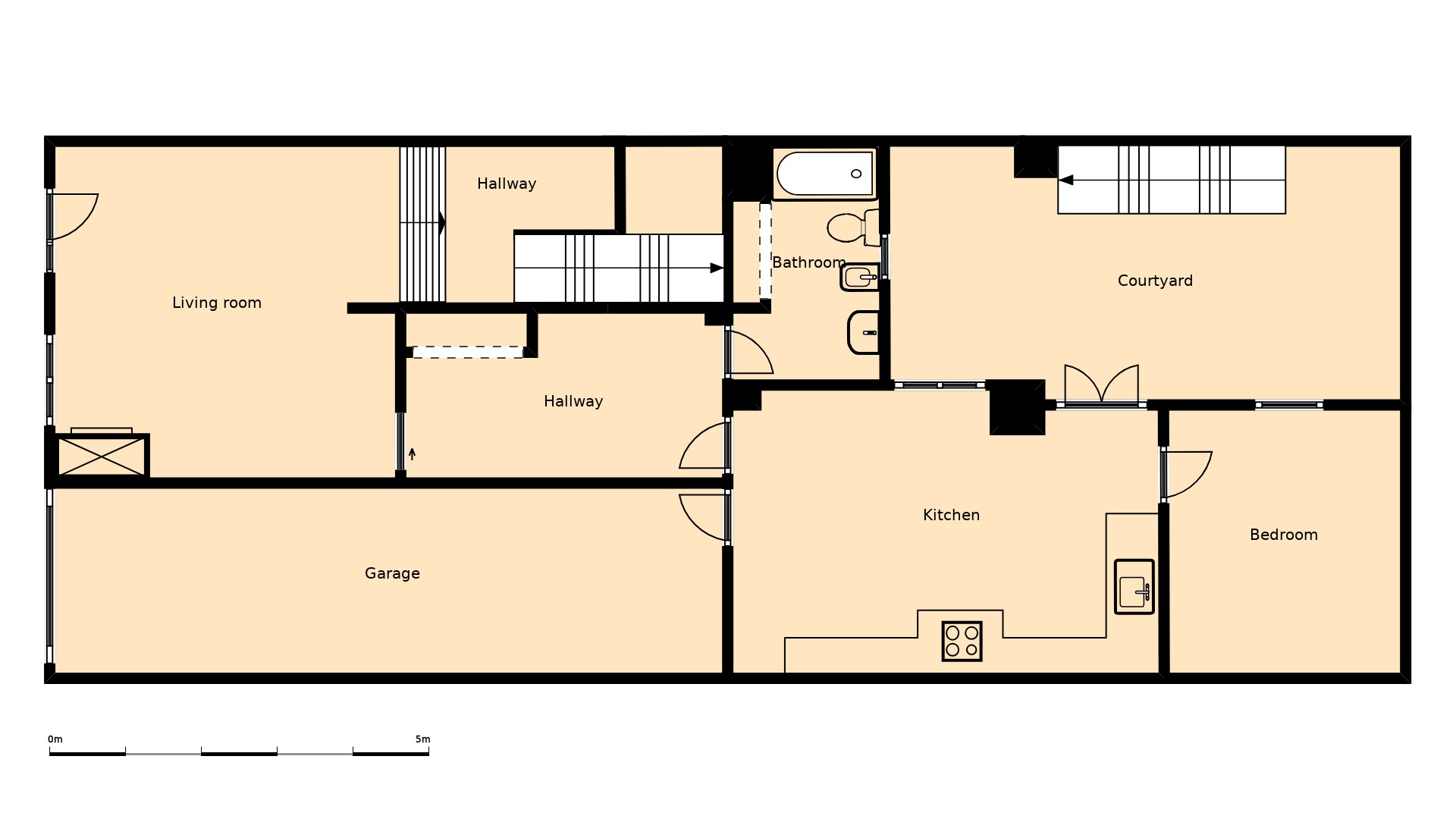
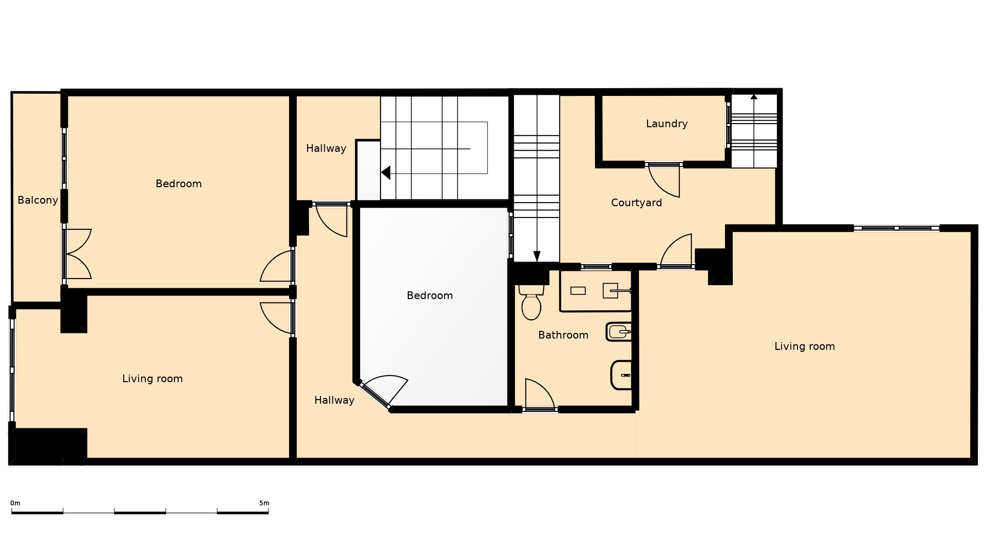
The ground floor comprises entrance hall with fireplace, hallway, bathroom, kitchen, garage and external patio. The upper floor comprises lounge area, bathroom, 3 large double bedrooms and a terrace with laundry room. The main bedroom also has access to a south-east-facing balcony facing the street, where you can sit and enjoy the sun, a book, a drink or all three!
You will notice from the plans provided that both the upper lounge and the lower kitchen which are directly above one another have a very generous floor size of 22.25 square metres!
We have provided a walk-through video which will explain the layout better! This is a lovely home which offers plenty of space in a great location. Available exclusively from Villas Fox!
This fantastic home is offered for sale by Villas Fox, having been appointed directly by the owners. We have by far the best selection of properties in the San Miguel de Salinas area. Our office is on the San Miguel ring road (Ronda Oeste) between the Repsol petrol station and the Masymas supermarket.
San Miguel de Salinas
San Miguel de Salinas is a very popular Spanish town just 15 minutes drive from the beaches of Mil Palmeras, Campoamor, Cabo Roig, La Zenia, Torrevieja, La Mata, Guardamar etc and surrounded by beautiful countryside which includes citrus and almond groves and the national park of Sierra Escalona right on our doorstep. You can walk and cycle for miles along the canal which runs right next to the town.
There are a great variety of bars and restaurants, both Spanish and international (the annual tapas run event is very popular!). If you are looking for a holiday destination or a place to live all year round, San Miguel is a great choice as it has all amenities (excellent primary and secondary schools, banks, health centre which never closes, 3 pharmacies, large outdoor swimming pool, football and athletics stadium, 5-a-side football pitch, tennis courts, padel courts, basketball courts, petanca, crown green bowls etc) and maintains the same rhythm throughout the year (ie not too busy in the summer, and not too quiet in the winter).
The pace of life is gentle and relaxing, and prices in the bars tend to be more reasonable than the coast. The weekly Wednesday street market is a great opportunity to stock up on locally grown fresh fruit and vegetables, hams, cheeses, olives, clothes and shoes etc, before having a drink and tapas in one of our friendly tavernas!
There is a good local taxi service and buses run several times daily to Torrevieja, Orihuela and Murcia. Alicante and Murcia airport are both approx 40 mins drive away. Internet services are generally fast (fibre-optic) and reliable. San Miguel is a place where you can enjoy a taste of traditional Spanish life and culture, whilst being close enough to the coast to enjoy all the great things the Costa Blanca has to offer. ¡Bienvenidos a San Miguel de Salinas!




